Deze website maakt gebruik van cookies

Deze website gebruikt cookies en verzamelt daarmee informatie over het gebruik van de website onder andere om deze te analyseren en te verbeteren en voor social media. Wil je meer weten over deze cookies, lees dan onze privacy disclaimer en de uitleg over cookies
Door hiernaast op "Akkoord" te drukken, geef je aan akkoord te zijn met het gebruik van cookies en het verzamelen van informatie aan de hand daarvan door ons en door derden. Wil je niet alle soorten cookies toestaan, klik dan op "Cookie instellingen aanpassen".

foto
foto
foto
foto
foto
foto
foto
foto
foto
foto
foto
foto
foto
foto
foto
foto
foto
foto
foto

Nazarethstraat 12 5021 VX Tilburg

Verkocht

Omschrijving

Opnieuw in verkoop!!

Deze knusse tussenwoning in het centrum staat klaar voor jou!
De woning staat leeg en is op kort termijn te leveren.

De centrumlocatie - net onder de Schouwburgring - is natuurlijk geweldig; even te voet de stad in voor een boodschapje of terrasje en de supermarkt ligt letterlijk 'om de hoek'. Ook het Stadspark en openbare voorzieningen zijn lopend te bereiken.

De woning is gebouwd in 1928 en door de eigenaar goed onderhouden met kunststof dakbedekking en grotendeels kunststof kozijnen voorzien van HR+ glas en zelfs triple glas. De wanden en plafonds zijn gestuukt en recent nog geschilderd. Er ligt mooi laminaat in de woonkamer en slaapkamers.
De meterkast is al vervangen en uitgebreid met 8 groepen en de Cv-ketel komt uit 2012. (recent jaarlijkse onderhoudsbeurt gehad)
De keuken is ruim, maar wel gedateerd. Het wordt jouw keuze of je deze wil vervangen of het er nog even mee doet, want dàt kan natuurlijk ook!

De stadstuin is ongeveer 25 m2 groot en op het noordoosten gesitueerd. Je hebt een eigen stenen berging en een achterom voor de fietsen.

INDELING:

Begane grond:
Hal met trapopgang
Woonkamer met veel lichtinval en kelderkast met de nieuwe elektrameter.
Keuken met veel werkruimte en inbouwapparatuur, zoals een gaskookplaat, afzuiger en oven. Er staat een losse koelkast en er is een aansluiting voor de wasmachine en een vaatwasser . In de keuken hangt ook de Cv-ketel (Intergas, 2012).
Portaaltje met de buitendeur en toegang tot de badkamer en het aparte toilet.
De badkamer is gedeeltelijk betegeld en voorzien van een ligbad(!) en wastafel.
De toiletruimte heeft een staand toilet en een fonteintje.

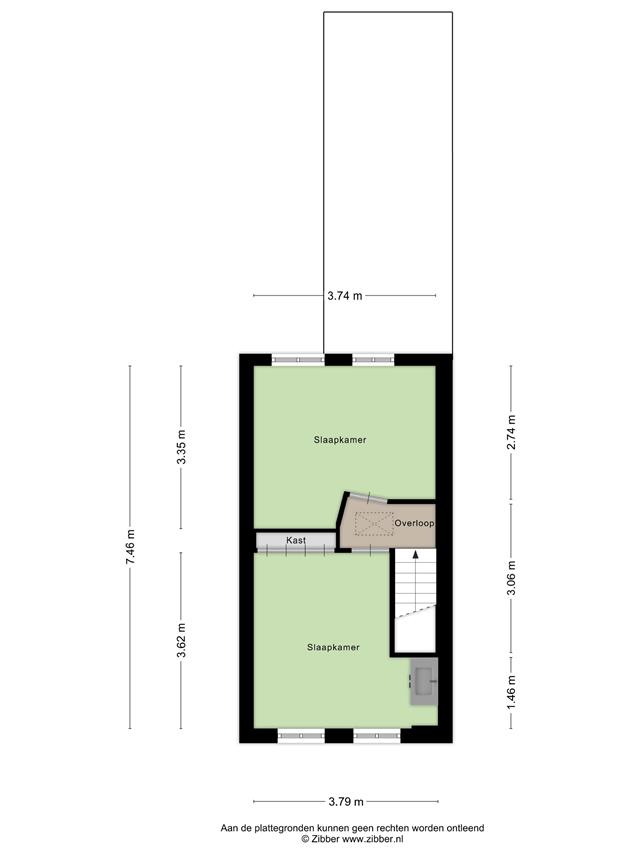
1e Verdieping:
Overloop met het luik voor de vlizotrap naar de vliering.
Er zijn 2 grote slaapkamers over de volledige breedte; aan voorzijde en aan achterzijde.

2e Verdieping:
Vliering met bergruimte; deze ruimte is niet meegenomen in het woonoppervlak.


BIJZONDERHEDEN:
> woonoppervlak 71 m2
> inhoud 264 m3
> bouwjaar 1928
> grotendeels kunststof kozijnen met isolerende beglazing
> Cv-ketel 2012
> recent opgeknapt en direct te betrekken
> groot onderhoud is goed, afwerking zelf te beoordelen en naar wens uit te voeren
> centrumlocatie, winkels, openbaar vervoer en horeca te voet bereikbaar
> bouwkundig rapport aanwezig en te vinden op de eigenwebsite van de woning.

 Bezichtiging aanvragen

Uniek aan deze woning

Kenmerken

Kenmerken

Vraagprijs: € 300.000,- k.k.
Aanvaarding: direct
Bouwvorm: Bestaande bouw
Bouwjaar: 1928
Ligging: in centrum, in woonwijk
Woonoppervlakte: 75 m²
Perceeloppervlakte: 80 m²
Inhoud: 270 m³
Type woning: tussenwoning, eengezinswoning
Kamers: 3
Slaapkamers: 2
Badkamers: 1
Energielabel: D
Verwarming: c.v.-ketel
Tuin: achtertuin
Ligging Tuin: noordoost
Garage: geen garage
Schuur: vrijstaand steen

Vraag bezichtiging aan

Vraag bezichtiging aan TOP

Locatie

Locatie TOP

U vertrekt vanaf

Toon route